Maison à étage Style Arcachonnais sur Bassin d'Arcachon
Façade maison à étage style arcachonnais sur Bassin d'Arcachon
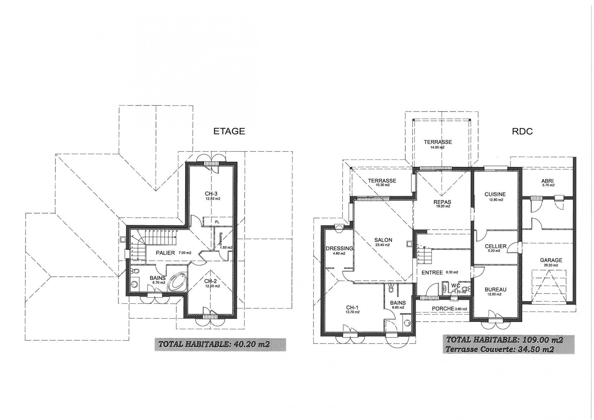
Plan maison à étage style arcachonnais Les Mas d'Arguin

Maison style arcachonnaise sur le Bassin d'Arcachon

Fort de son experience dans la construction de maisons individuelles sur mesure, Les Mas d'Arguin vous présente ici une expression de l'architecture arcachonnaise revisitée de manière contemporaine par notre bureau d'étude.

 

La conception du plan personnalisé intègre des espaces de vie intérieur-extérieur pour un confort de vie optimisé.

 

 

Lumière, espace et fonctionnalité dans une architecture traditionnelle expression de qualité et d'innovation.

 

 

Vous avez un projet ? Contactez Les Mas d'Arguin, notre équipe vous accompagnera pour le réaliser.

 

 

Contact Les Mas d'Arguin

Tel : 05-56-66-05-55

Email : les-mas-darguin@orange.fr

Quel secteur géographique vous intéresse? : Bassin d'Arcachon
Nous écrire
Les champs indiqués par un astérisque (*) sont obligatoires
Parlez-nous de votre projet