Terrasse couverte construction sur Bassin d'Arcachon
maison plain pied en L contemporaine Bordeaux
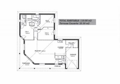
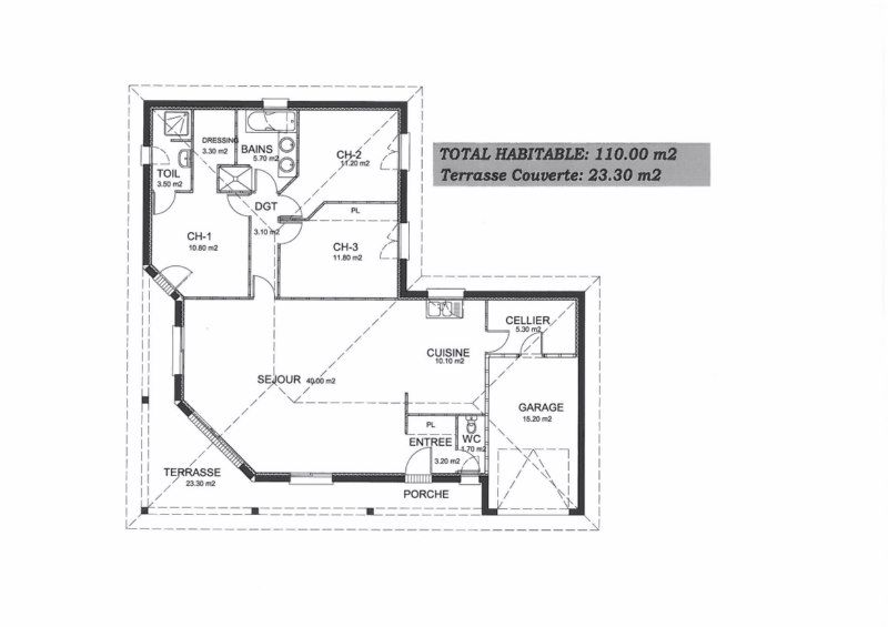
Plan maison 3 chambres avec terrasse Bassin d'Arcachon

Construction maisons en L en Gironde

Les Mas d'Arguin , constructeur expérimenté a su s'adapter : Ici, l'implantation des zones de vie est fonction des orientations du terrain.

 

La vision depuis l'intérieur est dirigée vers l'extérieur afin d'accentuer la sensation d'espace.

 

La terrasse couverte en arcades est un clin d'oeil au style méditerranéen, visuel qui donne un rendu architectural plus chaleureux et permet de prolonger les soirées en extérieur à l'arrière saison.

 

Une construction de maison en L pertinente et optimisée.


Grâce à notre logiciel spécialisé, nous serons en mesure de vous présenter des vues intérieures et extérieures de votre future maison, réalistes et en 3D.

 

Contact Les Mas d'Arguin

Tel : 05-56-66-05-55

Email : les-mas-darguin@orange.fr

Quel secteur géographique vous intéresse? : Gironde
Nous écrire
Les champs indiqués par un astérisque (*) sont obligatoires
Parlez-nous de votre projet