Maison contemporaine de plain pied sur le Bassin d'Arcachon Les MAs d'Arguin
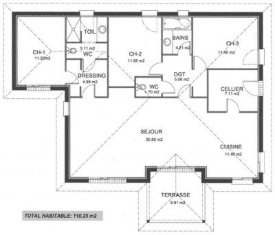
Plan maison 3 chambres Construction Maître d'oeuvre  Gironde Bassin d'Arcachon Les Mas d'Arguin

Constructeur de maisons contemporaines en Gironde - Les Mas d'Arguin

Implanté sur le Bassin d'Arcachon depuis plus de 20 ans, Les Mas d'Arguin vous accompagne pour réaliser la maison de vos rêves, unique et qui vous ressemble.

 

 

Confort de vie  optimisé en adéquation avec la règlementation thermique RT 2012 pour cette maison réalisée en construction traditionnelle.

 

 

La façade sud du terrain reçoit la terrasse couverte, espace de vie convivial en Gironde et plus précisément sur le Bassin d'Arcachon.

 

 

Maîtrise des coûts, simplicité du plan personnalisé et optimisation de la surface habitable pour une meilleure maîtrise du budget. Paramètres indissociables pour le constructeur.

 

 

Venez partager avec nous vos idées, nous réaliserons une étude unique et personnalisée de votre projet.

 

Contact Les Mas d'Arguin

Tel : 05-56-66-05-55

Email : les-mas-darguin@orange.fr

Quel secteur géographique vous intéresse? : Gironde
Nous écrire
Les champs indiqués par un astérisque (*) sont obligatoires
Parlez-nous de votre projet