Construction Maison RT 2012 personnalisée bassin d'arcahon cub Les Mas d'Arguin
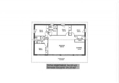
Plan interieur maison RT 2012 BASSIN D'ARCACHON

CONCEPTION MAISON RT 2012 AVEC GRANDE SURFACE VITREE ET TERRASSE Bassin d'arcachon

Les Mas d'Arguin, constructeur de maisons individuelles depuis plus de 20 ans, vous presente cette réalisation aux grandes baies vitrées lui donnant un concept de vie "dedans-dehors".

 

 

D'architecture sobre et épurée, toutes ses pièces habitables se dirigent sur une large terrasse.

 

 

Cette construction RT2012 s'adapte tant en résidence principale qu'en maison de villégiature.

 

 

La conception faite par notre bureau d'étude a optimisé la surface habitable. Cette maison exposée plein sud révèlera tout son potentiel et gardera son esprit quelque soit son lieu d'implantation : Bassin d'Arcachon, CUB, Bordeaux, ou Nord de Landes.

 

 

L'équipe des Mas d'Arguin peut vous accompagner dans la recherche de votre terrain.

 

 

Contact Les Mas d'Arguin

Tel : 05-56-66-05-55

Email : les-mas-darguin@orange.fr

 

Quel secteur géographique vous intéresse? : Bassin d'Arcachon
Nous écrire
Les champs indiqués par un astérisque (*) sont obligatoires
Parlez-nous de votre projet